Price £575,000 - Available


  • Threer bedrooms
  • Separate fitted kitchen and bright dining area
  • Family bathroom and ground floor WC
  • Private rear garden with large workshop
  • Off-street parking via driveway
  • Excellent transport links via Beckton DLR and road networks
  • Close to schools, parks, shopping, and leisure facilities

3 Bedroom End of Terrace with a large workshop, Garden & Driveway Fulmer Road, Beckton

Bryants are delighted to present this spacious three bedroom end of terrace home, ideally located on Fulmer Road in Beckton. Offering versatile living accommodation with a private garden, and large workshop, this property is well-suited to families or buyers seeking flexible space.

Ground Floor: The home opens with a welcoming hallway leading to a bright dining area with French doors opening onto the garden, a separate fitted kitchen, and a convenient W/C.

First Floor:
Upstairs, the property offers three generously sized bedrooms and a family bathroom.

Outside:
The private rear garden features a patio and artificial lawn, creating a low-maintenance outdoor space perfect for relaxing or entertaining. A large workshop adds further practicality, with potential for storage, a gym, or creative use. A front driveway provides valuable off-street parking.

Location:
Fulmer Road is a quiet residential street with excellent local amenities. Beckton DLR is within walking distance, offering direct access to Canary Wharf, Stratford, and the City, while the A13 and A406 provide quick road links to London City Airport and beyond. Shopping is close at hand with Beckton Triangle and Gallions Reach Retail Parks offering supermarkets, shops, and dining options. Families will appreciate the nearby schools including Winsor Primary and Kingsford Community School, as well as green spaces such as Beckton District Park and New Beckton Park. Stratford's Westfield Shopping Centre is just a short drive or DLR journey away, making this location both convenient and connected.



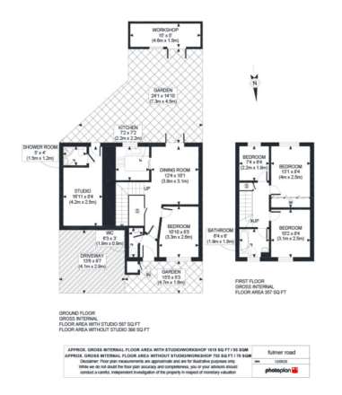
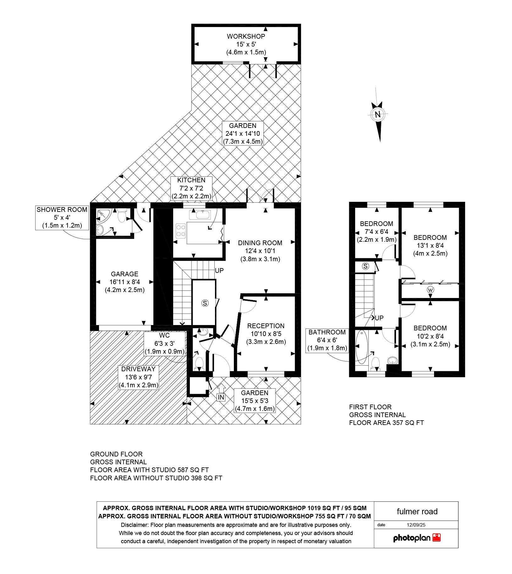
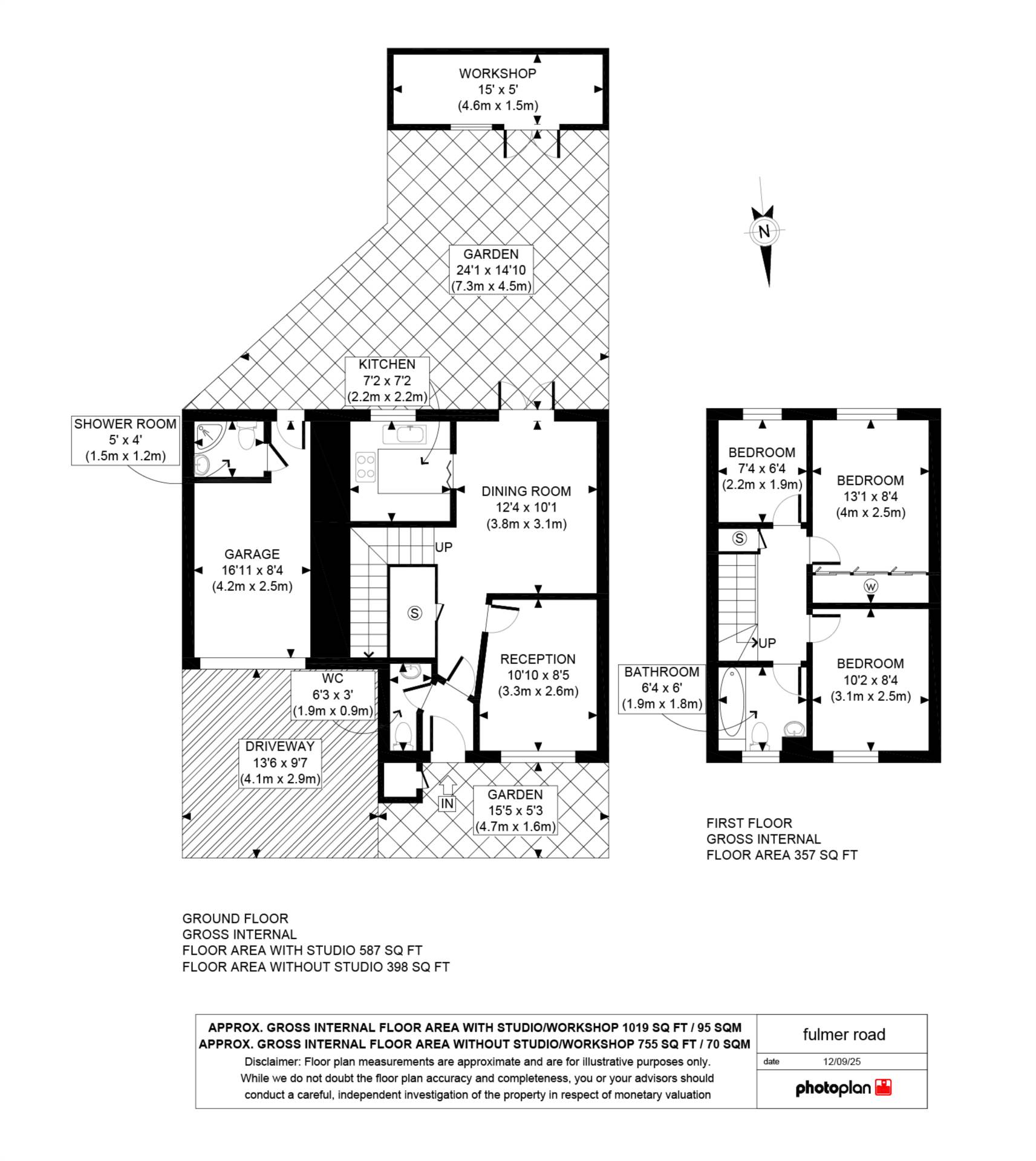
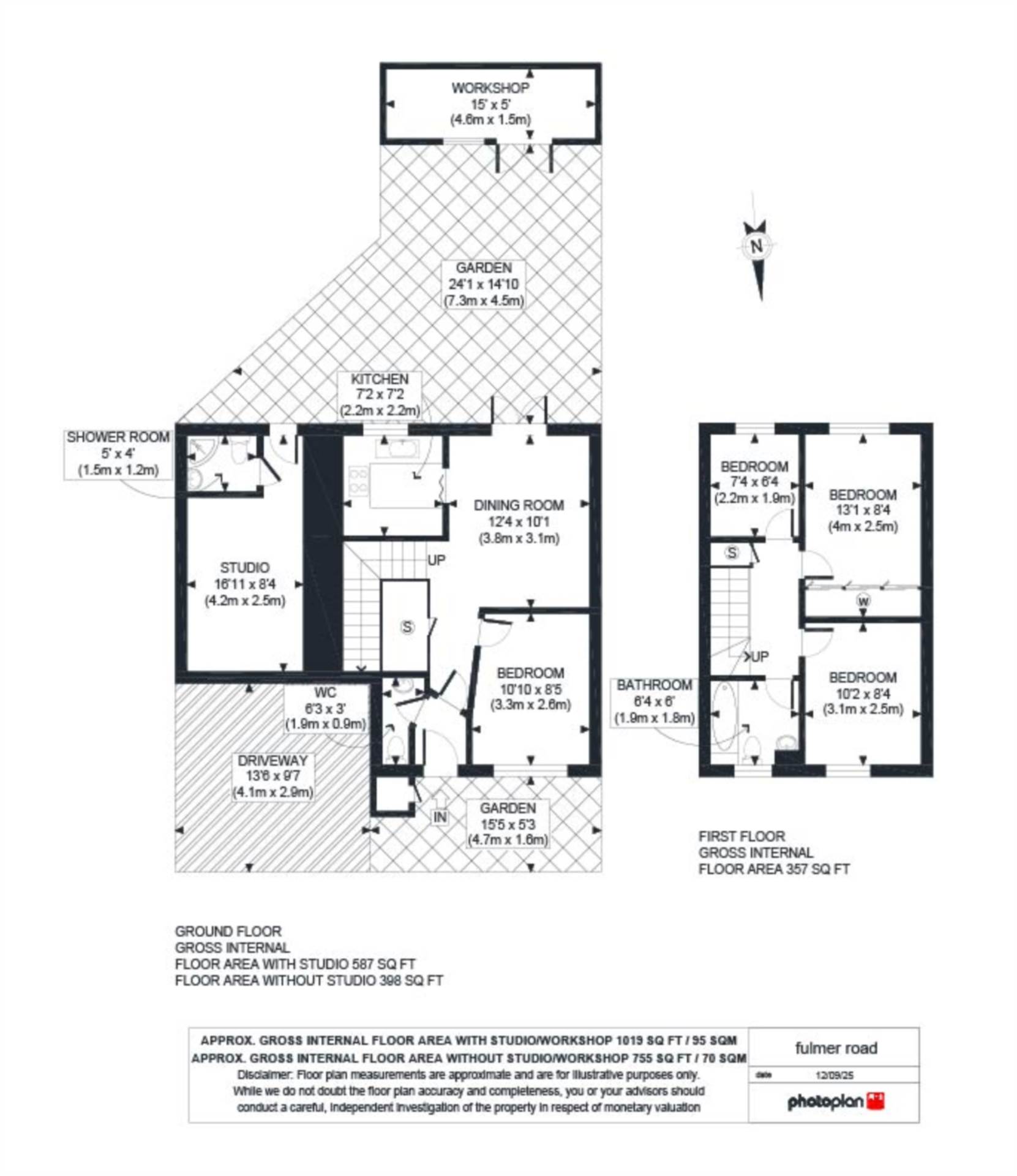
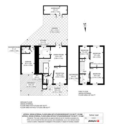
garden - 24'1" (7.34m) x 14'10" (4.52m)

reception - 10'10" (3.3m) x 8'5" (2.57m)

reception 2 - 12'4" (3.76m) x 10'1" (3.07m)

kitchen - 7'2" (2.18m) x 7'2" (2.18m)

garage - 16'11" (5.16m) x 8'4" (2.54m)

bedroom 1 - 13'1" (3.99m) x 8'4" (2.54m)

bedroom 2 - 10'2" (3.1m) x 8'4" (2.54m)

bedroom 3 - 7'4" (2.24m) x 6'4" (1.93m)

bathroom - 6'4" (1.93m) x 6'0" (1.83m)



Council Tax
London Borough Of Newham, Band D

Notice
Please note we have not tested any apparatus, fixtures, fittings, or services. Interested parties must undertake their own investigation into the working order of these items. All measurements are approximate and photographs provided for guidance only.

Floor Plan
EER Chart

The Energy-Efficiency Rating is a measure of a home's overall efficiency. The higher the rating, the more energy-efficient the home is, and the lower the fuel bills are likely to be.

Utility Supply Type
Electric Mains Supply
Gas Mains Supply
Water Mains Supply
Sewerage Mains Supply
Broadband Unknown
Telephone Unknown

Other Items Description
Heating Not Specified
Garden/Outside Space No
Parking No
Garage No

Broadband Coverage Highest Available Download Speed Highest Available Upload Speed
Standard 15 Mbps 1 Mbps
Superfast 76 Mbps 20 Mbps
Ultrafast 1800 Mbps 220 Mbps

Mobile Coverage Indoor Voice Indoor Data Outdoor Voice Outdoor Data
EE Enhanced Enhanced Enhanced Enhanced
Three Enhanced Enhanced Enhanced Enhanced
O2 Enhanced Likely Enhanced Enhanced
Vodafone Enhanced Enhanced Enhanced Enhanced

Broadband and Mobile coverage information supplied by Ofcom.


marker icon